Gebäudethermografie

Den Wärmeverlusten auf der Spur

 

  • Wir untersuchen Ihr Wohnhaus oder Gebäude auf energetische Schwachstellen

 

  • Mit unserer leistungsstarken Thermografiekamera vom Typ FLIR P620 können wir hochauflösende Thermogramme erstellen

 

  • Wir werten die Bilder für Sie aus und Sie erhalten im Anschluss eine Dokumentation inklusive der markierten Schwachstellen

 

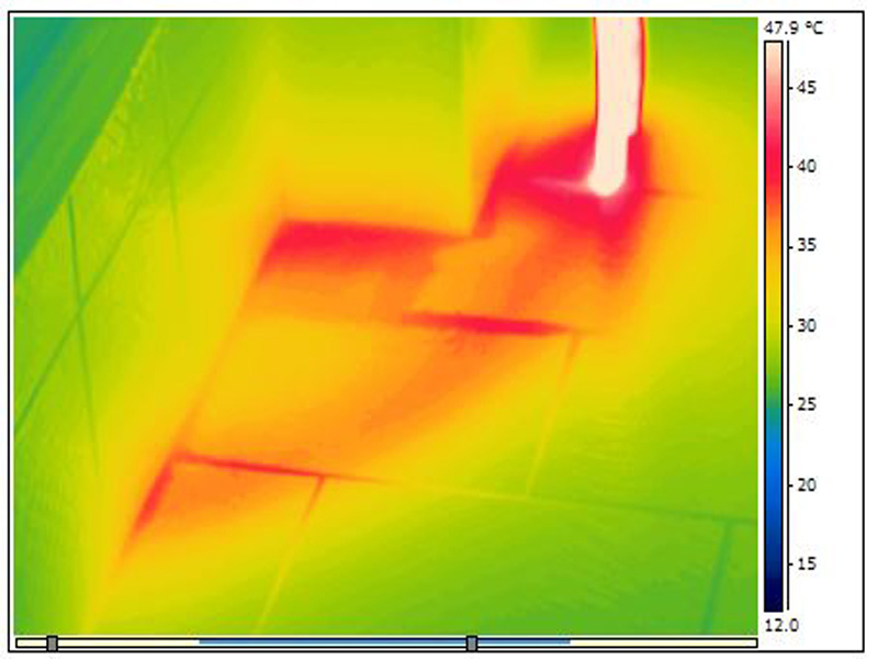
Das Wärmebild deckt energetische Schwachstellen auf


SYSWE unterstützt Sie bei der Gebäudethermografie. Damit können wir…

… Baumängel aufspüren und die Qualität von Baumaßnahmen beurteilen. Wärmebrücken können aufgedeckt werden, diese entstehen z.B. durch eine fehlerhafte Wärmedämmung. Sehr zu empfehlen bei der Planung von Sanierungsmaßnahmen

… Leckagen oder Wasserschäden orten. Mögliche Leckagen oder Feuchteschäden können dargestellt werden, ohne den betroffenen Bereich in Wand oder Fußbodenaufbrechen zu müssen. Auch intakte Heizungsleitungen können z.B. vor Baumaßnahmen lokalisiert werden.

… die Luftdichtheit von Gebäuden prüfen. Ergänzend zum Blower Door Test kann die Thermografie genutzt werden, um die durch die Druckdifferenz nach Innen gelangende kühlere Außenluft zu visualisieren und die Leckage zu orten.

 

Das Wärmebild, auch Thermogramm genannt, hilft Wärmeverluste Ihres Gebäudes zu erkennen. Die Ursachen hierfür können vielfältig sein:

  • Feuchtigkeitseintritt
  • Ausführungsmängel in der Gebäudestruktur
  • Nicht ausreichende oder fehlerhaft verarbeitete Wärmedämmung
  • Wärmebrücken in der Baustruktur
  • Undichtigkeiten an Fenstern und Türen

 

Die Wärmebildkamera gibt das Bild in Echtzeit und in hoher Pixelauflösung wieder, was erste zuverlässige Aussagen über Energieverluste an Ihrem Gebäude schon vor Ort zulässt.

An eingegrenzten Flächen lassen sich mit Hilfe der Kopterthermografie auch Thermografie Aufnahmen aus der Luft vornehmen.

 

Häufige Fragen


Wie funktioniert Gebäudethermografie?

Mithilfe einer Infrarotkamera ist es möglich, die ausgestrahlte Wärme sichtbar zu machen. Aus diesem Grund sollte die zu begutachtende Immobilie beheizt sein und die Außentemperatur relativ niedrig ausfallen. Optimal sind Temperaturen um die 5 Grad Celsius. Unser Thermograf erstellt dann mit der Infrarotkamera eine Vielzahl von Bildern, deren Auswertung am Computer erfolgt. Die Wärme wird in unterschiedlichen Farben dargestellt. So erkennen Sie gleich, an welchen Stellen die größten Wärmeverluste entstehen. Allein durch deren Beseitigung können Sie schon einen hohen Betrag an Heizenergiekosten einsparen, sodass sich die Gebühren für die Durchführung einer Gebäudethermografie schnell amortisieren.

 

Welche Vorbereitungen müssen für die Thermografie getroffen werden?

Für aussagekräftige Thermografieaufnahmen muss ein Temperaturunterschied von mindestens 10°-15°C zwischen Innen und Außen herrschen. Daher sollten die Räume ca. 12-24 Stunden vor dem Termin geheizt werden.

 

Gibt es bestimmte Anforderungen an das Wetter oder die Außentemperatur?

Ja, Thermografieaufnahmen machen nur dann Sinn, wenn die richtigen Bedingungen herrschen. Die Außentemperatur sollte höchstens 5° bis 6°C betragen, damit eine Temperaturdifferenz von mindestens 10° bis 15°C zwischen Innen und Außen erreicht wird. Bei strahlendem Sonnenschein sollten keine Aufnahmen gefertigt werden, da die Sonnenstrahlen die Außenwände zusätzlich aufheizen und die Ergebnisse verfälscht werden können. Starke Niederschläge und Wind sind ebenfalls nicht für Thermografieaufnahmen geeignet. Die besten Bedingungen herrschen bei niedrigen Außentemperaturen, bedecktem Himmel und vorzugsweise in den frühen Morgen- oder späten Abendstunden.

 

Wozu benötige ich Thermografieaufnahmen von meinem Gebäude?

Thermografieaufnahmen von Ihrem Gebäude können in unterschiedlichen Situationen helfen. Vor Sanierungsmaßnahmen erhalten Sie einen Überblick über mögliche Wärmelecks und können so ihr Haus gezielt instandsetzen. Bei einem Neubau oder nach bereits durchgeführten Sanierungen haben Sie mit der Thermografie eine Möglichkeit die Qualität der Leistungen zu beurteilen und mögliche Nachbesserungen zu fordern,

 

Auf dem Markt gibt es viele Anbieter für Thermografie von Gebäuden, woran erkenne ich professionelle Angebote?

Es gibt viele Anbieter die Thermografie zu „Schnäppchenpreisen“ anbieten. Hier ist vorsicht geboten, denn häufig erhalten Sie dann nur einige bunte Fotos, in meist schlechter Qualität, ohne weitere Bewertungen. Die Kunst liegt nicht unbedingt in der Erstellung der Aufnahmen sondern vielmehr in der richtigen Bewertung der Bilder. Seriöse Anbieter beiten Ihnen daher neben den eigentlichen Aufnahmen einen Bericht, in dem die Schwachstellen aufgezeigt und bewertet werden. Ein seriöser Anbieter nimmt sich Zeit für Ihre Fragen und benötigt detaillierte Informationen über das Gebäude.